En Venta
Departamento dos ambientes en pozo de categoria. Edif. Torre Punta Arena VI. Zona: Macrocentro
Código: 209843

Av. Independencia 2700, B7600DIX Mar del Plata, Provincia de Buenos Aires, Argentina, Mar Del Plata, Buenos Aires, Argentina.

USD80.000

Departamento
Compartir esta Propiedad

Descripción de la Propiedad

CARACTERÍSTICAS DEL PROYECTO:

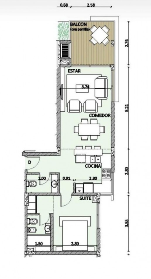
Este proyecto se trata de la próxima torre emblemática para la zona, con una altura que asciende a 17 pisos y un café cultural incorporado. La torre Punta Arenas VI tendrá 16 pisos de viviendas y oficinas, más un piso de espacios comunes.
La ubicación es privilegiada, estará emplazado en Av. Independencia al 2700, entre Garay y Rawson; una de las avenidas que conectan Mar del Plata de norte a sur. Esto permite que sea de gran comodidad para quienes residen en la ciudad, como también para los turistas, por su gran cercanía con el centro.
Otro beneficio de su ubicación, es la cercanía con las instituciones educativas más importantes; como la UNMDP, una de las cuatro mejores universidades a nivel nacional. La torre Punta Arenas VI estará, asimismo, a cuadras de distancia de los centros de salud más renombrados de la ciudad. La emblemática plaza Mitre, y la pintoresca plaza Peralta Ramos suman espacios verdes muy elegidos y a pocos metros.

Construcción Premium:

Estructura de hormigón armado con cerramientos exteriores de doble muro, con cámara de aire y doble aislación hidrófuga.
Terminaciones exteriores con pintura plástica Tipo Tarquini, látex en paredes y cielorrasos,y esmalte sintético previo convertidor en carpinterías metálicas
Aberturas de aluminio blanco DVH.
Instalación para la colocación de Aire Acondicionado en estar y dormitorio con previsión de drenajes.
Cañerías para instalación cable y teléfono.
Instalación de agua fría y caliente en termofusión.
Pisos de Porcellanato, en estar comedor, baño y cocina.
Frente de placard de piso a techo, con interiores.
Cielorrasos en yeso armado o aplicado con buñas.
Paredes interiores con terminación en yeso pintado al látex blanco.
Puertas de ingreso de 1° calidad, reforzada con mirilla y cerradura de seguridad.
En baño: columna de ducha, vanitory y accesorios, griferías fv, revestimiento en porcelanato de piso a techo y espejos.
Equipamiento de cocina completo con muebles altos y bajos realizado en combinación de colores con cantos.
Artefacto de cocina con horno de 1° calidad.
Calefacción por radiadores con caldera individual dual.
Mesada de cocina en granito, con zócalos, bacha doble acero inoxidable y grifería monocomando FV.
Balcones al frente con deck y parrilla.
Portero eléctrico de visor, color, con cámara.
Ascensores de última generación.

Características Sustentables:

Paneles solares para espacios comunes: la Energía Solar Fotovoltaica ofrece beneficios hacia el medioambiente y sistemas de ahorro impactando de forma positiva en el bolsillo de los propietarios. Asegura el suministro eléctrico en situaciones de cortes imprevistos del servicio.
Jardines exteriores verticales: ayudarán a purificar el aire, reducir y regular la temperatura ambiente.
Estaciones de cargas para autos eléctricos: proveerán electricidad para la recarga rápida de las baterías de los vehículos eléctricos, incluyendo los vehículos híbridos enchufables.
Sistema de riego con captación de agua de lluvia: la reutilización de este recurso natural para el riego proporciona un ahorro de dinero y beneficia al cuidado del medioambiente.
Cestos de reciclaje: es el primer paso para poder tener una política de reciclaje de la basura y así reducir la contaminación ambiental.
Doble muro de ladrillo: con cámara de aire logrando doble aislación hidrófuga que permite conservar la temperatura del ambiente, reduciendo el consumo eléctrico.
Aberturas de doble vidrio (DVH): brinda ahorro en climatización por su cámara hermética debido al uso de un doble vidrio.
Climatización por aerotermia: La aerotermia es sinónimo de eficiencia energética. Extrae hasta un 75% de su energía del aire de la atmósfera y sólo un 25% de la electricidad sin contaminar.

RESEÑA
El café cultural se encontrará en el basamento del edificio, pensado para alojar exposiciones artísticas. El proyecto busca restaurar, mediante los murales de Juan Carlos Castagnino, la conexión cultural con la ciudad e integrarlo con un edificio de uso residencial.

En la planta baja se ubicará el acceso con el área de recepción y una tienda, de libros y revistas, relacionados con la temática. El primer piso ofrece un espacio mixto de mesas con servicio de cafetería, un área de exposición y los murales de Juan Carlos Castagnino ocupando doble altura en los laterales. El segundo piso será destinado a exposiciones, charlas o conferencias referidas al arte.

Climatización sustentable inteligente a través del sistema Aero:
Aerotermia
La aerotermia es sinónimo de eficiencia energética. Extrae hasta un 75% de su energía del aire de la atmósfera y sólo un 25% de la electricidad sin contaminar.


En estaciones de temperaturas bajas, el sistema absorbe la energía del aire exterior y lo libera en el inmueble en forma de agua caliente. Circula por el piso radiante, tradicional o split. Regular con mayor precisión la temperatura del agua circulante, reduce el consumo de energía y mejora el rendimiento.
Refrigeración Aero
Refrigeración Aero
Refrigera el ambiente mediante la inyección de aire frío proporcionado por los splits. La bomba de calor reutiliza el aire caliente que se disipa en el exterior, para que pueda ser reinsertado como aire frío.
Agua Caliente
Agua Caliente
El sistema recupera la energía disipada por el compresor durante la climatización. La convierte en agua caliente y la acumula, gratuitamente, en tanques de acero inoxidable, a una temperatura entre 50 y 65 grados centígrados.

Mas detalles
  • ACEPTA MENOR VALOR
  • PRIMERA ESCRITURA
  • Escribania Designada